
弗瑞斯集团是一家丹麦的家族企业,已经有超过78年的历史,在此期间,弗瑞斯集团专注于动态平衡阀产品的研发与生产,成为了世界上领先的压力无关型动态平衡阀的制造商,为船用及工业的热交换应用,比如中央空调和甲板下的机舱冷却和换热系统提供了整体的流量控制解决方案。同时,“技术,质量,创新,卓越制造,客户第一”这5个企业核心价值观也引领了弗瑞斯集团不断发展壮大,同时也为客户提供越来越好的产品及方案打下了坚实的基础。
1944年,弗瑞斯第一代创始人博格弗瑞斯,在丹麦的斯劳厄尔斯成立弗瑞斯工厂,当年传世人在当地买了一片大约15000平方的土地开设了铸造厂,专门生产和提供各类管道产品。
到了1950年,弗瑞斯公司就推出了第一款水暖产品,为日后专业生产暖通系统控制类产品打下了基础。
1988年,弗瑞斯公司正式推出了全球第一款动态平衡阀,提出了全新的动态平衡控制概念,并很快就将该类产品确定为公司集团的战略核心产品,不断研发改进至今。
自2004年开始,弗瑞斯集团就开始涉足船用及工业市场,并获得了豪华邮轮上中央空调系统应用的订单,同时,弗瑞斯也很快地进入到欧洲的船用市场并获取了相应的认证。
2016年,随着弗瑞斯船用业务的逐步扩大,集团也正式成立了船用及工业事业部。
“什么是压力无关型动态平衡阀?
”
简单来说,压力无关型动态平衡阀是可以不受系统压力波动影响,始终保持流量输出稳定的一个产品。
可以看到,根据流量公式,只需要通过控制阀前后的压差ΔP和KV常数,就能很好地稳定阀门的输出流量。
Q=Kv*
弗瑞斯的动态阀门就是将节流孔板,压差调节器以及手动(或电动)调节的功能结合在一起,通过压差调节器来稳定阀前后的压差,为输出流量的稳定提供保障。同时,通过手动或者电动调节的功能,还能让使用者灵活调节所需的流量输出,让使用者能获取一个既能灵活调节,又能稳定持续的流量输出。
动态平衡阀结构示意图
也就是说,阀门内的压力调节器,可以让阀门不受整体系统波动的影响,提供一个稳定的输出流量,同时,也可以通过手动或者电动的方式,让客户根据实际需要获取到自己所需要的实际流量。
与此同时,弗瑞斯的电动调节产品还可以根据使用者的实际需要,为系统提供一个线性的或者等百分比的流量控制特性,方便使用者根据实际系统的情况,获取到自己想要的控制特性。
流量与控制信号曲线图
介绍了那么多产品的特性,很容易的就理解了为什么会推荐使用动态产品来进行流量控制了,动态产品可以大幅简化水基供热和制冷系统的设计工作量。
特别是对于设计师而言,不需要复杂的控制阀KVS计算,只要能确定对应位置所需的流量,就可以很简单地选择对应口径的阀门,甚至于优化管道设计,节省空间和制造成本。
而对于安装来说,也可以大大简化安装和调试的工作,减少所需安装的组件,节约生产时间。同时,由于阀门的特性,对于日常维护工作,也可以节省大量的人力及时间。
| 设计师 | 安装 | 运维 |
|---|---|---|
| 简化系统设计 | 安装简单 | 最少的维护工作 |
| 达到设计条件 | 需要安装的组件更少 | 和变频泵一起实现节能 |
| 不需要复杂的控制阀 KV 计算 | 调试简单 | 系统不会过流 |
| 可提前选择阀门 | 所需的流量可以直接就地调节 | 冷却水始终是平衡状态 |
通过实例的计算表明,使用了动态产品,不光是在设计,安装和调试上降低了大量的成本,同时对于系统来说,由于系统达到了最佳的平衡状态,对于整个系统来说可以以始终维持在最经济高效的运行状态,节能率最高可高达50%左右。
这就好比日常开的汽车在定速巡航状态的时候会处于一个最节能的状态,对燃油的使用效率会达到最优值,从而节省大量的能源。
所以,可以预见,在越来越讲究绿色环保的大环境下,不论是“碳达峰”还是“碳中和”等,都是在强调节约能源,保护环境。使用动态系统,就是一个能有效提高系统效率,节约能源,实现环保目标的可靠的手段之一。
这就是一开始说的,为什么推荐在供热和制冷等热交换系统中使用动态产品的原因。
“基本工作原理和节能方式,船上的冷暖系统怎么能节省这么多能源呢?
”
可以看到,其实总体来说,在设计整个系统时,往往会预留大量的余量,这些余量是为了对应在不同工况条件下,保证系统能正常工作的条件。
| 系统 | 设计条件 | 实际运行(均值) |
|---|---|---|
| 主引擎 | 100% | 10-50% |
| 副引擎 | 100% | 10-50% |
| 冷却系统: 外部空气和水温 | 热带:32℃ | ISO: 25°C |
| 供热系统 | 外部空气: -20℃外部水: -2℃ | 外部空气: 25°C 外部水: 25°C |
但是也正因为这些余量,产生了很多浪费,这里的浪费不仅是指在日常系统运行时产生的能量的浪费,也体现在制造时对设备选型,安装,调试时产生的浪费。
典型的运行状态
主引擎 副引擎
就像上图所示,实际运行时的均值可能只有设计值的一半左右。同时,也可以看到,根据离心泵相似定律,在实际操作中,减少系统所需流量并控制该流量达到最优值,是减少系统和泵能量消耗的一个重要的机会。
“如何减少冷暖系统的流量?
”
根据离心泵相似定律,如果想要减少流量q,
通过节流减少流量
通过泵转速降低流量
这两个方式都可能会面临着因为工况不同而导致频繁变化的情况,一般来说如果系统能稳定在最优能耗状态时才是最节能的一个状态,
这里可以看到,通过计算表明,通过对实际控制流量的减少,可以获得大量的泵功率的消耗。
降低流量要求的相对功耗
50%的流量减少会减少~50-87%的泵功率消耗
因此通过动态阀和变频泵相结合,可以为系统带来最大的节能效率,为客户节省大量的燃油消耗。
“HVAC系统中的动态流量控制
”
一般来说,船上如果要使用中央空调系统,一般会应用在一些大型的远洋或者内江的豪华邮轮,客滚轮等可能会有许多客舱的环境中。
目前来说,最常用的还是通过电动开关阀门和静态平衡阀来实现系统的平衡和控制,
但是,如果使用该方式,需要在系统实际运行前花费大量时间进行调试工作,一般是从系统最远端或者最不利端往前端一个一个调试,调完一圈后再回去进行逐个验证,然后这样往复几次才能获取到正确的流量。这么做往往需要耗费几周甚至1个月的时间。
另外一种就是在分支上增加压差控制阀和静态平衡阀,通过对系统的分解,进行小范围的调试,但这同样不能完全避免长时间的调试工作。
可变流量系统-带DPCV的静态平衡
如果在末端直接使用带动态平衡功能的控制阀来替换静态平衡阀+压差控制阀+电动开关(或调节)阀的话,就可以在不增加很多设备投资的情况下大大减少安装和调试的工作时间,减少延期交船的风险。
动态平衡和控制 – 简单调试
一般来说,使用了动态平衡产品的空调系统,只要在系统的最不利点进行流量的验证,只要该点的流量达到了设计或者实际使用的需求,基本可以确保系统其他位置都能获得一个稳定的需求流量,无需进一步的调试工作。同时也可以根据这个数据对水泵进行优化选型,节约初始投资。
与此同时,如果客户使用的是变频泵,可以通过末端或者最不利端的压差对水泵进行转速控制。
既能保证关键末端处始终有足够的压力,也能使水泵维持在最小泵功率运行,这样就能大大节省能源的消耗。
同时,使用动态产品还有一个好处就是,如果系统需要扩容。
只要水泵扬程足够,可以很方便地增加额外的末端,而不需要对系统流量进行复杂的重新计算,设计等工作,这方面对于改造或者维修翻新这块来说,特别突出。
“动态阀技术的冷却水系统概念
”
就目前常用的机舱冷却系统而言,可以看到目前绝大部分系统使用的还是孔板或者静态阀这种静态平衡的控制方式,这种方式会因为系统压力的变化而导致流量发生变化。
而且从实际使用来说,船上的冷却水系统在设计时往往考虑的更多是安全因素,而不是为节能设计的。
因此动态阀的引入给大家提供了一个新的选择,该产品不仅能保持冷却系统的安全运行,也可以通过优化系统流量满足实际冷却需求,同时可以通过对系统的优化,进一步提高节能效率,为整体的节能减排提供助力。
当然,弗瑞斯还提供类似于三通温控阀等多种不同的产品,为客户提供额外的燃油节省机会。
仅靠能源效率措施无法实现海运业的完全脱碳,但仍有未开发的潜力随时可用。
船舶上的冷却水系统历来是为安全运行而设计的,而不是为节能而设计的。
这些系统是静态系统,设计用于最大冷却负荷,但未根据运行中的实际冷却需求进行调整。
动态阀技术引入了一种简单可靠的方法,用于减少流量以满足实际冷却需求,同时保持冷却系统的安全运行。
此外,Frese还提供了低泄漏三通温度控制阀,提供额外的燃油节省。
“弗瑞斯冷却水系统的控制方法
”
图片中的系统是一个很典型的机舱碳水冷却系统,当然实际的系统可能会有所不同,但总体原理是差不多的。
1.动态阀节流至所需的冷却水量(或完全关闭)
2.泵正在减速,只提供最小压差
3.使用带静态功能的3通阀进行精确的温度控制
弗瑞斯通过动态阀,变频泵,以及新一代低泄漏率的温控阀的整体配合。
通过计算表明,不仅在设计,安装,调试上节省了约50%的成本,节能率更高达50%左右,可以让客户在短短的1年多的时间里面就收回投资,为客户提供了一个实现节能减排目标的很不错的一个选择。
“LTFW 冷却水系统概览
”
这里,我可以通过一个实际案例,来给大家简单展示一下使用弗瑞斯的动态解决方案,可以为客户提供的燃油节省效率。可以看到,通过弗瑞斯的动态产品和变频泵的配合使用。
系统示意图
弗瑞斯建议设计
再加上一些实际测定及预估的使用数据。
泵功率消耗的测定方法:
通过分析计算可得,在实际使用中,通过使用动态产品对左舷和右舷两个低温淡水冷却系统的优化,弗瑞斯预期可以为船东节省大约每年178公吨的燃油消耗。主泵的频率驱动将产生类似的燃油节省。
“燃油节能概览
”
同时,在主机缸套循环系统中,通过使用低泄漏率的产品,每年还能额外增加大约154公吨燃油的节省。
主机缸套循环系统中冷却水可以通过低泄漏率三通阀来节能。
左舷和右舷共有两个系统,每年可节省2x77=154公吨燃油。
再加上在低温碳水冷却系统中,同样可以使用低泄漏率的3通产品进行温度控制,还能额外节省约每年8公吨的燃油。
低温淡水冷却系统中的冷却水可以通过低泄漏率三通阀来节能。
左舷和右舷共有两个系统,每年可节省2x4=8公吨燃油。
“燃油节能综述
”
| Port (MT/Year/vessel) | Starboard(MT/Year/vessel) | |
|---|---|---|
| LTFW1 | 89 | 89 |
| LTFW2 | 89 | 89 |
| SW cooling | 89 | 89 |
| Low leak 3-way valve LTFW | 4 | 4 |
| Low leak 3-way valve HTFW | 77 | 77 |
| Total (MT/year/vessel) | 348 | 348 |
综合算来,如果再考虑其他系统的优化节能,比如高温淡水系统等的节能,总的来说,每年可以为船东节省燃油将近700公吨,不仅为船东的节能减排目标提供了助力,更实际的是为船东节省了大量燃油成本的消耗。
目前来说,弗瑞斯集团在动态产品这块主要为客户提供了
“定流量阀门
”
弗瑞斯 SIGMA是一个外部可调的动态平衡阀,它提供了简单,准确和可靠的流量限制和冷却系统的关断功能。
用于海水的弗瑞斯 ALPHA HCR是一种固定流量控制阀,适用于规定了所需流量的系统,该阀门是针对这种特定流量而建造的。
“压力无关型控制阀门
”
“控温阀
”
这些产品涵盖了绝大部分所需的口径范围及流量控制能力。可以满足大部分的系统需求。
当然,与此同时,弗瑞斯也可以提供传统的静态阀及手动产品的方案。以满足不同的市场需求。
“标准系统.说明及产品
”
HVAC 系统 (甲板上)
| 应用 | 描述 |
|---|---|
| 中央供热系统 | 用于乘客/机组舱和公共区域舒适供暖的中央供暖系统。 |
| 换热水系统 | 用于乘客/机组舱和公共区域舒适加热的中央冷却系统。 |
引擎室应用 (甲板下)
| 应用 | 描述 |
|---|---|
| 低温淡水冷却系统 (LTFW) | 淡水冷却系统,将冷却分配给船舶机舱内的所有机械设备。典型温度为36°C。 |
| 高温淡水冷却系统 (HTFW) | 淡水冷却系统通常只在装有大型二冲程推进发动机的船舶上使用。温度通常为85°C,连接到该系统的冷却末端较少。 |
| 中央供热系统 | 船舶通用加热系统,如油箱加热、燃油预热等。带蒸汽系统的容器通常不带该系统 。 |
| 换热水系统 | 特殊容器需要在低于LTFW系统的温度下对技术设备和机械进行冷却,并且在机舱内有6°C的冷冻水系统。 |
| 应用 | 描述 |
|---|---|
| 海水冷却系统 | 大多数船舶只使用海水与换热器中的淡水冷却系统进行传热。如果并联安装更多的海水冷却器,则可选择动态平衡。 |
| 压载水处理系统 (BWTS) | 压载水处理系统需要一个专用的流量来满足要求。与安装的泵功率相比,弗瑞斯 Alpha阀的流量限制和平衡可以帮助安装更小的系统,或者平衡并联安装的多个BWTS。 |
| 洗涤器(塔) | 洗涤器在洗涤塔的不同位置有多个喷嘴。弗瑞斯动态阀技术有助于优化洗涤器中的泵能量和流量分配。 |
这些产品除了刚才说的船用空调及机舱冷却系统之外,其实还有很多应用场景有待发掘,比如压载水系统等。
HVAC 系统:
引擎室 (甲板下):
弗瑞斯集团自2004年涉足船用市场以来,也已经积累了不少实际使用案例。目前可以看到主要的应用还是集中在船用空调和机舱冷却系统中
当然,除了这两个应用外,弗瑞斯还在2019年的Color Hybird号双燃料混合动力渡轮上,为其电池冷却,余热回收系统中也有相关的应用,并取得了很不错的节能效果。
以上就是本次线上研讨会分享的全部内容,大家如果有什么问题的话,可以线上或者线下直接联系我们。
弗瑞斯动态平衡系统在船用中央空调以及机舱冷却系统中的应用本次研讨会由弗瑞斯中国区海运及工业事业部销售总监叶斐晏为大家主讲,叶总着重介绍了船用中央空调系统和机舱(也就是引擎室)里面的动态阀应用。
研讨会全程视频回顾
弗瑞斯公司以及集团
弗瑞斯集团是一家丹麦的家族企业,已经有超过78年的历史,在此期间,弗瑞斯集团专注于动态平衡阀产品的研发与生产,成为了世界上领先的压力无关型动态平衡阀的制造商,为船用及工业的热交换应用,比如中央空调和甲板下的机舱冷却和换热系统提供了整体的流量控制解决方案。同时,“技术,质量,创新,卓越制造,客户第一”这5个企业核心价值观也引领了弗瑞斯集团不断发展壮大,同时也为客户提供越来越好的产品及方案打下了坚实的基础。
1944年,弗瑞斯第一代创始人博格弗瑞斯,在丹麦的斯劳厄尔斯成立弗瑞斯工厂,当年传世人在当地买了一片大约15000平方的土地开设了铸造厂,专门生产和提供各类管道产品。
到了1950年,弗瑞斯公司就推出了第一款水暖产品,为日后专业生产暖通系统控制类产品打下了基础。
1988年,弗瑞斯公司正式推出了全球第一款动态平衡阀,提出了全新的动态平衡控制概念,并很快就将该类产品确定为公司集团的战略核心产品,不断研发改进至今。
自2004年开始,弗瑞斯集团就开始涉足船用及工业市场,并获得了豪华邮轮上中央空调系统应用的订单,同时,弗瑞斯也很快地进入到欧洲的船用市场并获取了相应的认证。
2016年,随着弗瑞斯船用业务的逐步扩大,集团也正式成立了船用及工业事业部。
2020年,为了能更好地满足中国市场的发展与需求,中国的船用及工业事业部也正式成立。
为什么使用动态阀门?
“
什么是压力无关型动态平衡阀?
”
简单来说,压力无关型动态平衡阀是可以不受系统压力波动影响,始终保持流量输出稳定的一个产品。
可以看到,根据流量公式,只需要通过控制阀前后的压差ΔP和KV常数,就能很好地稳定阀门的输出流量。
Q=Kv*
Q = 流量 [m3/h]
KV = 常数 [m3/h/bar]
ΔP = 压差 [bar]
弗瑞斯的动态阀门就是将节流孔板,压差调节器以及手动(或电动)调节的功能结合在一起,通过压差调节器来稳定阀前后的压差,为输出流量的稳定提供保障。同时,通过手动或者电动调节的功能,还能让使用者灵活调节所需的流量输出,让使用者能获取一个既能灵活调节,又能稳定持续的流量输出。
Image
动态平衡阀结构示意图
弗瑞斯动态平衡阀结构原理解析视频
也就是说,阀门内的压力调节器,可以让阀门不受整体系统波动的影响,提供一个稳定的输出流量,同时,也可以通过手动或者电动的方式,让客户根据实际需要获取到自己所需要的实际流量。
与此同时,弗瑞斯的电动调节产品还可以根据使用者的实际需要,为系统提供一个线性的或者等百分比的流量控制特性,方便使用者根据实际系统的情况,获取到自己想要的控制特性。
Image流量与控制信号曲线图
介绍了那么多产品的特性,很容易的就理解了为什么会推荐使用动态产品来进行流量控制了,动态产品可以大幅简化水基供热和制冷系统的设计工作量。
特别是对于设计师而言,不需要复杂的控制阀KVS计算,只要能确定对应位置所需的流量,就可以很简单地选择对应口径的阀门,甚至于优化管道设计,节省空间和制造成本。
而对于安装来说,也可以大大简化安装和调试的工作,减少所需安装的组件,节约生产时间。同时,由于阀门的特性,对于日常维护工作,也可以节省大量的人力及时间。
设计师 安装 运维
简化系统设计 安装简单 最少的维护工作
达到设计条件 需要安装的组件更少 和变频泵一起实现节能
不需要复杂的控制阀 KV 计算 调试简单 系统不会过流
可提前选择阀门 所需的流量可以直接就地调节 冷却水始终是平衡状态
通过实例的计算表明,使用了动态产品,不光是在设计,安装和调试上降低了大量的成本,同时对于系统来说,由于系统达到了最佳的平衡状态,对于整个系统来说可以以始终维持在最经济高效的运行状态,节能率最高可高达50%左右。
这就好比日常开的汽车在定速巡航状态的时候会处于一个最节能的状态,对燃油的使用效率会达到最优值,从而节省大量的能源。
所以,可以预见,在越来越讲究绿色环保的大环境下,不论是“碳达峰”还是“碳中和”等,都是在强调节约能源,保护环境。使用动态系统,就是一个能有效提高系统效率,节约能源,实现环保目标的可靠的手段之一。
这就是一开始说的,为什么推荐在供热和制冷等热交换系统中使用动态产品的原因。
在船上是怎么通过动态产品实现节能增效的呢?
“
基本工作原理和节能方式,船上的冷暖系统怎么能节省这么多能源呢?
”
可以看到,其实总体来说,在设计整个系统时,往往会预留大量的余量,这些余量是为了对应在不同工况条件下,保证系统能正常工作的条件。
系统 设计条件 实际运行(均值)
主引擎 100% 10-50%
副引擎 100% 10-50%
冷却系统: 外部空气和水温 热带:32℃ ISO: 25°C
供热系统 外部空气: -20℃外部水: -2℃ 外部空气: 25°C 外部水: 25°C
但是也正因为这些余量,产生了很多浪费,这里的浪费不仅是指在日常系统运行时产生的能量的浪费,也体现在制造时对设备选型,安装,调试时产生的浪费。
Image
典型的运行状态
Image主引擎 副引擎
就像上图所示,实际运行时的均值可能只有设计值的一半左右。同时,也可以看到,根据离心泵相似定律,在实际操作中,减少系统所需流量并控制该流量达到最优值,是减少系统和泵能量消耗的一个重要的机会。
平均冷却水量:设计的25-50%
离心泵的相似定律:50%流量=12.5%泵送能量
在实际操作中控制流量,是减少流量和泵能量消耗的一个重要机会
“
如何减少冷暖系统的流量?
”
P = 功率 , n= 泵转速, q = 流量
根据离心泵相似定律,如果想要减少流量q,
要么就是通过开关阀门降低流通能力,减少流量q。
Image通过节流减少流量
要么就是降低泵的转速n,来减少流量q。
Image通过泵转速降低流量
这两个方式都可能会面临着因为工况不同而导致频繁变化的情况,一般来说如果系统能稳定在最优能耗状态时才是最节能的一个状态,
这里可以看到,通过计算表明,通过对实际控制流量的减少,可以获得大量的泵功率的消耗。
Image降低流量要求的相对功耗
50%的流量减少会减少~50-87%的泵功率消耗
因此通过动态阀和变频泵相结合,可以为系统带来最大的节能效率,为客户节省大量的燃油消耗。
在船用中央空调系统中,如何应用动态阀门产品?
“
HVAC系统中的动态流量控制
”
一般来说,船上如果要使用中央空调系统,一般会应用在一些大型的远洋或者内江的豪华邮轮,客滚轮等可能会有许多客舱的环境中。
目前来说,最常用的还是通过电动开关阀门和静态平衡阀来实现系统的平衡和控制,
Image
Image
但是,如果使用该方式,需要在系统实际运行前花费大量时间进行调试工作,一般是从系统最远端或者最不利端往前端一个一个调试,调完一圈后再回去进行逐个验证,然后这样往复几次才能获取到正确的流量。这么做往往需要耗费几周甚至1个月的时间。
另外一种就是在分支上增加压差控制阀和静态平衡阀,通过对系统的分解,进行小范围的调试,但这同样不能完全避免长时间的调试工作。
Image
可变流量系统-带DPCV的静态平衡
如果在末端直接使用带动态平衡功能的控制阀来替换静态平衡阀+压差控制阀+电动开关(或调节)阀的话,就可以在不增加很多设备投资的情况下大大减少安装和调试的工作时间,减少延期交船的风险。
Image
ImageImage动态平衡和控制 – 简单调试
一般来说,使用了动态平衡产品的空调系统,只要在系统的最不利点进行流量的验证,只要该点的流量达到了设计或者实际使用的需求,基本可以确保系统其他位置都能获得一个稳定的需求流量,无需进一步的调试工作。同时也可以根据这个数据对水泵进行优化选型,节约初始投资。
与此同时,如果客户使用的是变频泵,可以通过末端或者最不利端的压差对水泵进行转速控制。
既能保证关键末端处始终有足够的压力,也能使水泵维持在最小泵功率运行,这样就能大大节省能源的消耗。
同时,使用动态产品还有一个好处就是,如果系统需要扩容。
ImageImage
只要水泵扬程足够,可以很方便地增加额外的末端,而不需要对系统流量进行复杂的重新计算,设计等工作,这方面对于改造或者维修翻新这块来说,特别突出。
发动机舱对动态系统的使用。
Image
“
动态阀技术的冷却水系统概念
”
就目前常用的机舱冷却系统而言,可以看到目前绝大部分系统使用的还是孔板或者静态阀这种静态平衡的控制方式,这种方式会因为系统压力的变化而导致流量发生变化。
而且从实际使用来说,船上的冷却水系统在设计时往往考虑的更多是安全因素,而不是为节能设计的。
因此动态阀的引入给大家提供了一个新的选择,该产品不仅能保持冷却系统的安全运行,也可以通过优化系统流量满足实际冷却需求,同时可以通过对系统的优化,进一步提高节能效率,为整体的节能减排提供助力。
当然,弗瑞斯还提供类似于三通温控阀等多种不同的产品,为客户提供额外的燃油节省机会。
仅靠能源效率措施无法实现海运业的完全脱碳,但仍有未开发的潜力随时可用。
船舶上的冷却水系统历来是为安全运行而设计的,而不是为节能而设计的。
这些系统是静态系统,设计用于最大冷却负荷,但未根据运行中的实际冷却需求进行调整。
动态阀技术引入了一种简单可靠的方法,用于减少流量以满足实际冷却需求,同时保持冷却系统的安全运行。
此外,Frese还提供了低泄漏三通温度控制阀,提供额外的燃油节省。
“
弗瑞斯冷却水系统的控制方法
”
Image
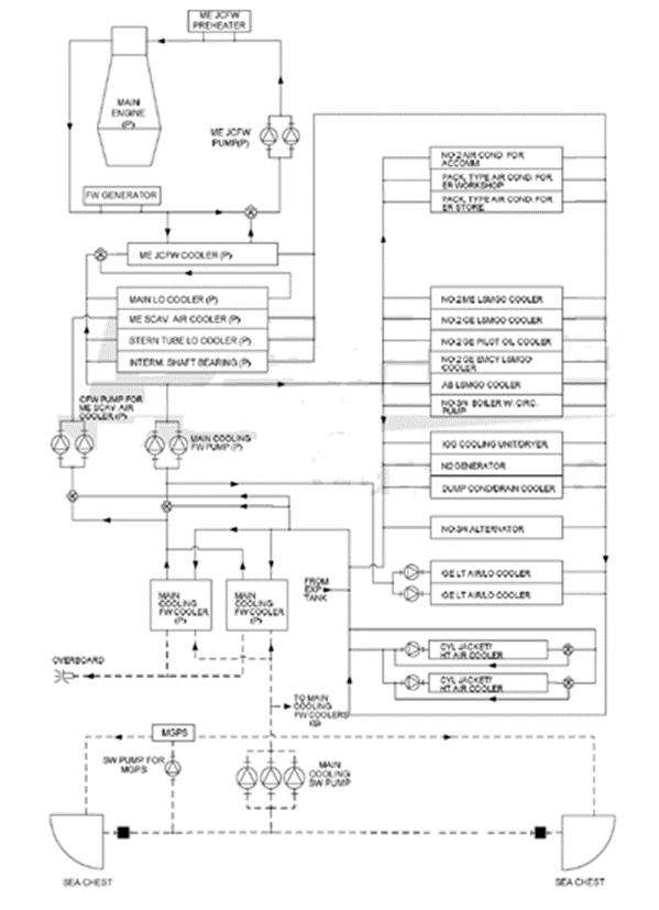
图片中的系统是一个很典型的机舱碳水冷却系统,当然实际的系统可能会有所不同,但总体原理是差不多的。
1.动态阀节流至所需的冷却水量(或完全关闭)Image
2.泵正在减速,只提供最小压差Image
3.使用带静态功能的3通阀进行精确的温度控制Image
弗瑞斯通过动态阀,变频泵,以及新一代低泄漏率的温控阀的整体配合。
每个末端只使用定流量阀
不需要孔板来平衡流量
系统中不会有过流
节省水泵工作 => 系统的流量由弗瑞斯阀门来保证
系统可分区调试
在管道选择中无需考虑过流的情况
最终的流量可以最后时刻再确定
泵一启动,系统就处于平衡状态=>降低了海试前的时间延迟风险。
通过计算表明,不仅在设计,安装,调试上节省了约50%的成本,节能率更高达50%左右,可以让客户在短短的1年多的时间里面就收回投资,为客户提供了一个实现节能减排目标的很不错的一个选择。
“
LTFW 冷却水系统概览
”
这里,我可以通过一个实际案例,来给大家简单展示一下使用弗瑞斯的动态解决方案,可以为客户提供的燃油节省效率。可以看到,通过弗瑞斯的动态产品和变频泵的配合使用。
Image
系统示意图
Image
弗瑞斯建议设计
主机扫气冷却器部分的水泵和三通阀已经独立出来。
流量由2-通动态阀控制。
使用变频泵。
用3x50%的泵代替2X100%的泵可以提高节能效果。
再加上一些实际测定及预估的使用数据。
Image
泵功率消耗的测定方法:
系统采用数值软件“Pipe Flo”建模,以匹配泵的性能和管道和冷却设备的阻力。
根据PID估算的管道长度和尺寸,并与设计条件下的2bar总压头匹配
冷却水量取自设计流量的热平衡。
部分荷载假设如上表所示。
Image
Image
通过分析计算可得,在实际使用中,通过使用动态产品对左舷和右舷两个低温淡水冷却系统的优化,弗瑞斯预期可以为船东节省大约每年178公吨的燃油消耗。主泵的频率驱动将产生类似的燃油节省。
“
燃油节能概览
”
同时,在主机缸套循环系统中,通过使用低泄漏率的产品,每年还能额外增加大约154公吨燃油的节省。
主机缸套循环系统中冷却水可以通过低泄漏率三通阀来节能。
Image
Image
左舷和右舷共有两个系统,每年可节省2x77=154公吨燃油。
再加上在低温碳水冷却系统中,同样可以使用低泄漏率的3通产品进行温度控制,还能额外节省约每年8公吨的燃油。
低温淡水冷却系统中的冷却水可以通过低泄漏率三通阀来节能。
Image
Image
左舷和右舷共有两个系统,每年可节省2x4=8公吨燃油。
“
燃油节能综述
”
Port (MT/Year/vessel) Starboard(MT/Year/vessel)
LTFW1 89 89
LTFW2 89 89
SW cooling 89 89
Low leak 3-way valve LTFW 4 4
Low leak 3-way valve HTFW 77 77
Total (MT/year/vessel) 348 348
用于流量控制的动态阀和变频器配合使用可以显著节省燃料。
低泄漏三通阀将有助于进一步节省高温和低温冷却水系统中的燃料消耗
预计投资回报周期:≈1年。
综合算来,如果再考虑其他系统的优化节能,比如高温淡水系统等的节能,总的来说,每年可以为船东节省燃油将近700公吨,不仅为船东的节能减排目标提供了助力,更实际的是为船东节省了大量燃油成本的消耗。
弗瑞斯为了实现这些方案所提供的相关产品
目前来说,弗瑞斯集团在动态产品这块主要为客户提供了
“
定流量阀门
”
定流量阀(Alpha)
弗瑞斯 ALPHA 是一种固定流量控制阀,适用于规定了所需流量的系统,该阀是为这种特定流量而设计的。
带手动调节功能的定流量阀(Sigma compact)
弗瑞斯 SIGMA是一个外部可调的动态平衡阀,它提供了简单,准确和可靠的流量限制和冷却系统的关断功能。
适用于海水应用的定流量阀(Alpha HCR)
用于海水的弗瑞斯 ALPHA HCR是一种固定流量控制阀,适用于规定了所需流量的系统,该阀门是针对这种特定流量而建造的。
Image
“
压力无关型控制阀门
”
带电动控制功能的动态平衡控制阀(Optima Compact)
“
控温阀
”
以及全新一代的低泄漏率三通控制阀(Omega Compact)
ImageImageImageImageImage
这些产品涵盖了绝大部分所需的口径范围及流量控制能力。可以满足大部分的系统需求。
当然,与此同时,弗瑞斯也可以提供传统的静态阀及手动产品的方案。以满足不同的市场需求。
“
标准系统.说明及产品
”
介质——淡水
HVAC 系统 (甲板上)
应用 描述
中央供热系统 用于乘客/机组舱和公共区域舒适供暖的中央供暖系统。
换热水系统 用于乘客/机组舱和公共区域舒适加热的中央冷却系统。
2通阀 PICV (弗瑞斯 Optima Compact)
3通阀 (弗瑞斯 Omega Compact)
关断阀: 蝶阀和球阀
引擎室应用 (甲板下)
应用 描述
低温淡水冷却系统 (LTFW) 淡水冷却系统,将冷却分配给船舶机舱内的所有机械设备。典型温度为36°C。
高温淡水冷却系统 (HTFW) 淡水冷却系统通常只在装有大型二冲程推进发动机的船舶上使用。温度通常为85°C,连接到该系统的冷却末端较少。
中央供热系统 船舶通用加热系统,如油箱加热、燃油预热等。带蒸汽系统的容器通常不带该系统 。
换热水系统 特殊容器需要在低于LTFW系统的温度下对技术设备和机械进行冷却,并且在机舱内有6°C的冷冻水系统。
2通阀 PICV (弗瑞斯 Optima Compact)
3通阀 (弗瑞斯 Omega Compact)
关断阀: 蝶阀和球阀
介质——海水引擎室应用 (甲板下)
应用 描述
海水冷却系统 大多数船舶只使用海水与换热器中的淡水冷却系统进行传热。如果并联安装更多的海水冷却器,则可选择动态平衡。
压载水处理系统 (BWTS) 压载水处理系统需要一个专用的流量来满足要求。与安装的泵功率相比,弗瑞斯 Alpha阀的流量限制和平衡可以帮助安装更小的系统,或者平衡并联安装的多个BWTS。
洗涤器(塔) 洗涤器在洗涤塔的不同位置有多个喷嘴。弗瑞斯动态阀技术有助于优化洗涤器中的泵能量和流量分配。
定流量阀 (弗瑞斯 Alpha HCR)
Image
这些产品除了刚才说的船用空调及机舱冷却系统之外,其实还有很多应用场景有待发掘,比如压载水系统等。
HVAC 系统:
中央供热系统
换热水系统
引擎室 (甲板下):
淡水冷却系统
低温冷却水系统
海水冷却系统
平衡到中央冷却器的海水
载压水处理系统
淡水发生器流量控制
换热水系统
洗涤器用海水(NOx和SOx)
电池冷却
余热回收水系统
弗瑞斯集团自2004年涉足船用市场以来,也已经积累了不少实际使用案例。目前可以看到主要的应用还是集中在船用空调和机舱冷却系统中
当然,除了这两个应用外,弗瑞斯还在2019年的Color Hybird号双燃料混合动力渡轮上,为其电池冷却,余热回收系统中也有相关的应用,并取得了很不错的节能效果。
Image
以上就是本次线上研讨会分享的全部内容,大家如果有什么问题的话,可以线上或者线下直接联系我们。
请联系您的地区分公司了解更多信息
弗瑞斯阀门(宁波)有限公司
联系地址: 浙江省宁波市镇海区骆驼街道通和东路68号
邮政编码:315202
销售电话: +86 (0)574-86596968
询价邮箱:info@fresevalves.com
弗瑞斯阀门(宁波)有限公司
弗瑞斯阀门
丹麦弗瑞斯
弗瑞斯集团
丹麦弗瑞斯集团
弗瑞斯阀门(宁波)有限公司
动态平衡电动调节阀 Frese Optima Compact DN15-DN32
动态平衡电动调节阀 Frese Optima Compact DN40-DN300
动态平衡电动二通阀 EVA DN15-DN25
可调流量动态平衡阀 Sigma Compact DN15-DN300
固定流量动态平衡阀 Frese Alpha & Alpha Wafer DN15-DN800
静态流量平衡阀 STBV VODRV DN15-DN500
动态压差平衡阀 Frese PV, FLPV, PV Compact & YDF DN15-DN300
恒温控制阀&带高温热水旁通的恒温控制阀 CirCon & TemCon DN15-DN20
弗瑞斯能量阀 Frese Delta T
弗瑞斯测量仪 Frese SMART and Manometer
弗瑞斯备件 Frese Accessories
阀体
执行器
PICV
一体阀
能量阀
阀胆
孔板
导压管
法兰连接
螺纹连接
恒温控制阀
测量口
P/T plug
闸阀
蝶阀
球阀
止回阀
截止阀
制冷
供热
流体控制
机械
抗脱锌黄铜DZR
DN dn Dn
DELTA T delta t
MODBUS modbs